《北站上城》 【北站中央車站區,樞紐商務的價值潛能】【雙地鐵物業】絕版地段雙電梯洋房、高品質、現房交樓在售臻品戶型單間 45 8萬起一
參考價格:25000~40000|均價:
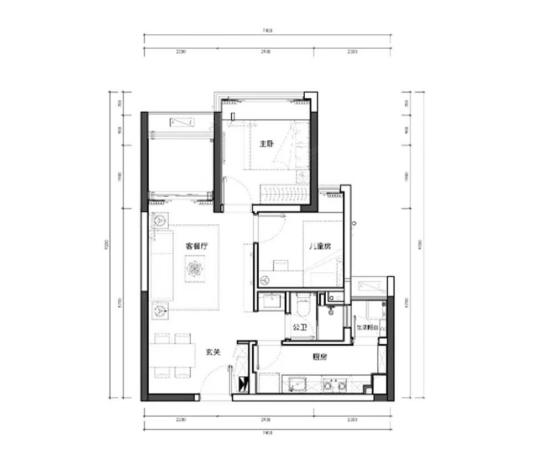
房屋戶型:1室 2室 3室 4室
住宅類型:大紅本房
深圳市龍華區紅山地鐵站500米處
深圳西鄉小產權房|鼎尚花園, 26000元 平
參考價格:25000~40000|均價: 26000元/平
房屋戶型:1室 2室 3室
住宅類型:農民房
深圳西鄉
深圳龍崗小產權房|蒞林?公園華府 2 6萬 平方
參考價格:25000~40000|均價:26000
房屋戶型:2室 3室 4室 5室
住宅類型:農民房
深圳龍崗
深圳觀瀾小產權房|觀瀾湖莊園 25800 套|均價
參考價格:25000~40000|均價:25800
房屋戶型:2室 3室
住宅類型:農民房
深圳觀瀾
從整個深圳的地理版圖來看,布吉剛好處于一個中間的位置,以布吉為圓心,可以用較短的距離快速通達全城各大主要區域,與深圳各區綜合通達距離是最近的作為深圳的地理中心。
參考價格:25000~40000|均價:55000元/平
房屋戶型:1室 2室 3室
住宅類型:
布吉街道鐵西路與安吉路交匯處