【深圳中軸】深圳C位幾何中心,城市功能中心之一,龍崗西核重要增長極【樞紐交通】緊鄰平湖白泥坑雙樞紐,7軌道4高速,約500米禾花站,高效
房屋戶型:1室 、2室 、3室 、
住宅類型:精裝修
區域:深圳市龍崗區平湖街道平吉大道與朝陽路交匯處
最新開盤:2022-12-03
立即咨詢
24小時咨詢熱線:13267179661
【深圳中軸】深圳C位幾何中心,城市功能中心之一,龍崗西核重要增長極
【樞紐交通】緊鄰平湖白泥坑雙樞紐,7軌道4高速,約500米禾花站,高效出行
【醇熟商業】四期自帶商業,毗鄰萬達、平湖天虹等,繽紛生活隨心享
【生態平湖】平湖生態園、鳳凰山國家礦山公園、羅山自行車郊野公園等環伺,暢享城市綠肺
【優教配套】緊鄰九年公立信德學校3所幼兒園(1所在建),家門口的優質教育
【區域騰飛】超1000萬㎡舊改煥新,多個逾百萬級品牌舊改,城市煥新,助力區域騰飛
【百萬大城】百萬醇熟大城,住宅、學校、社趣商業、文體站等一應俱全,盡享大城全維配套
【低密社區】深圳少有的少有的非超高層住宅,僅3.97低容積率,寬闊樓間距
【中央園林】約4.1萬㎡中央大花園,配置泳池、兒童活動、休閑健身等功能空間
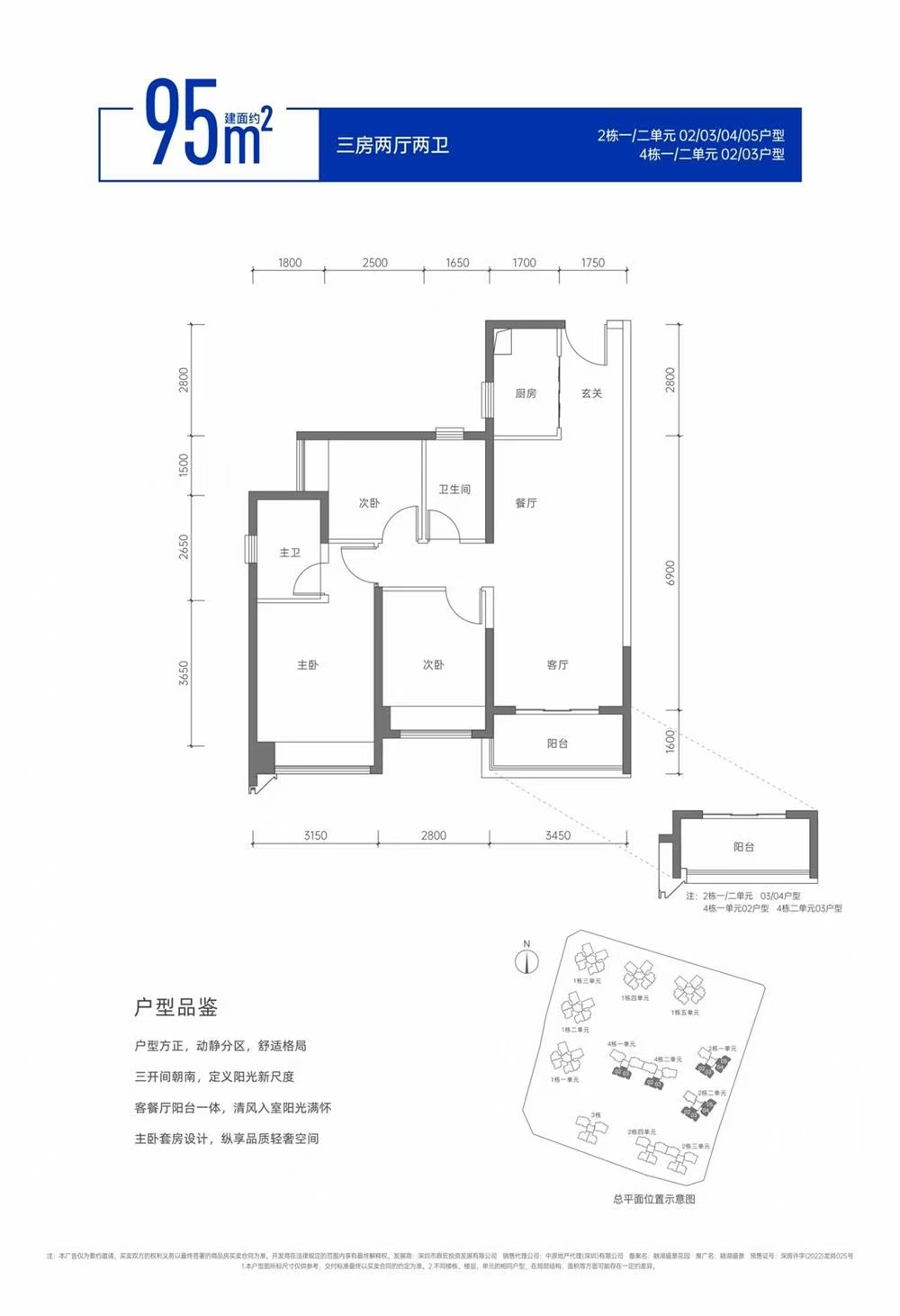
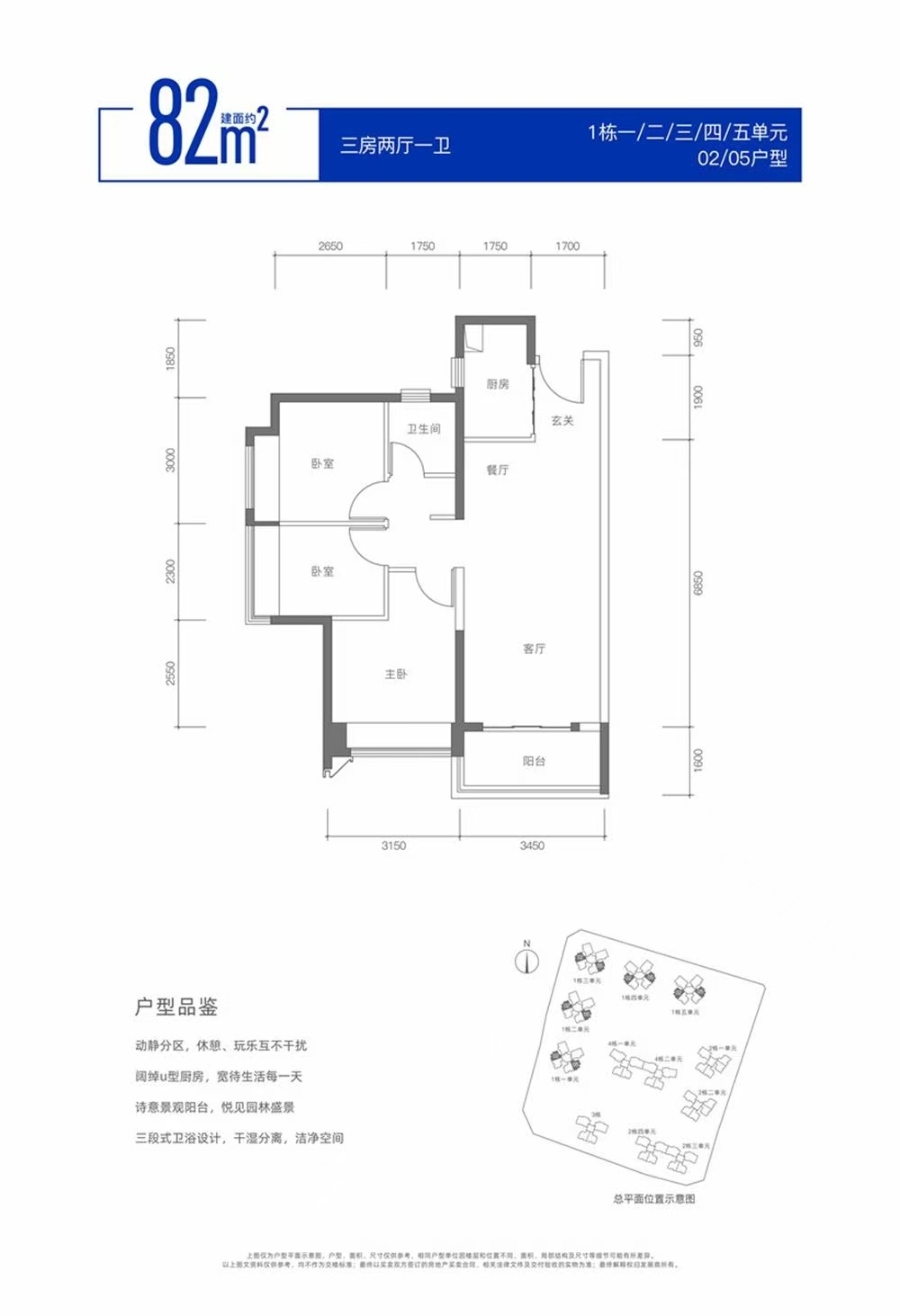
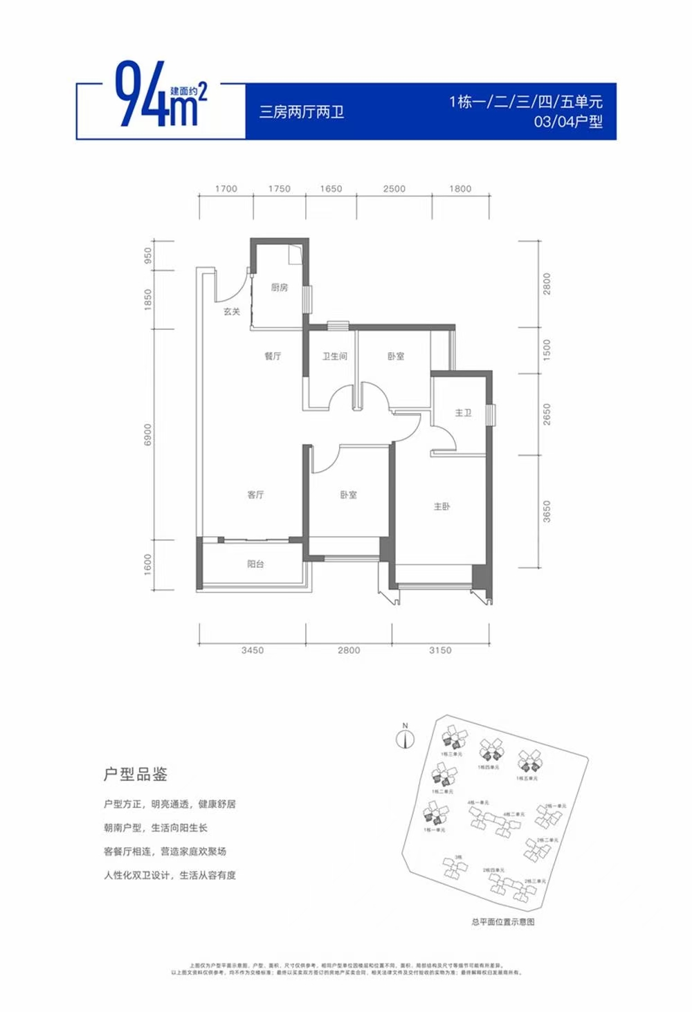
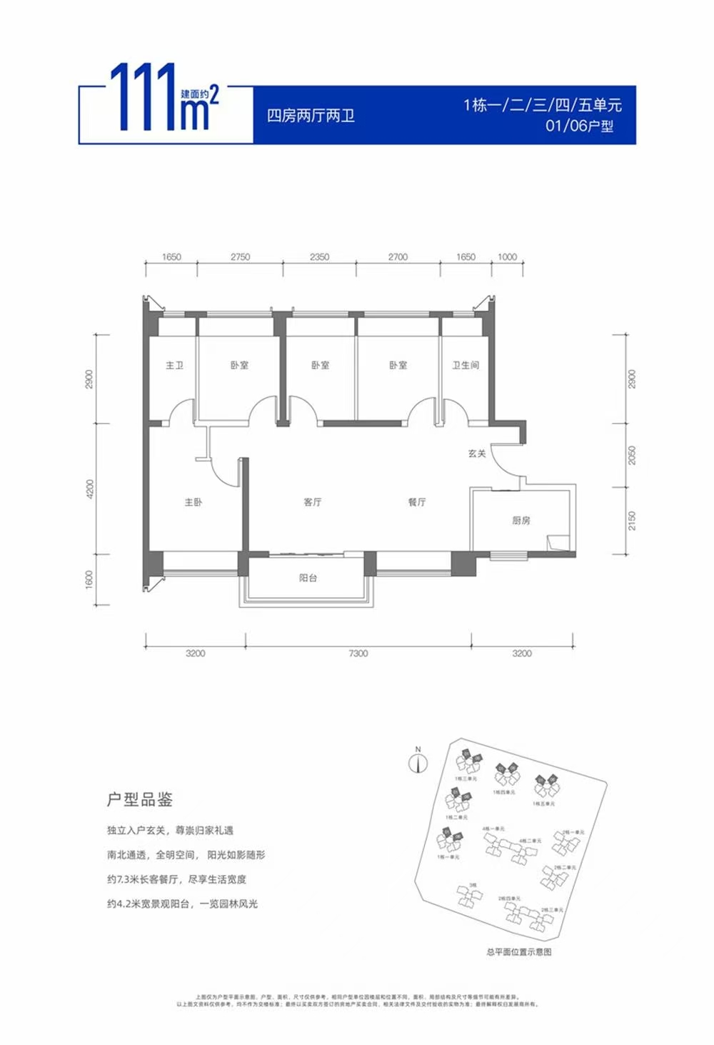
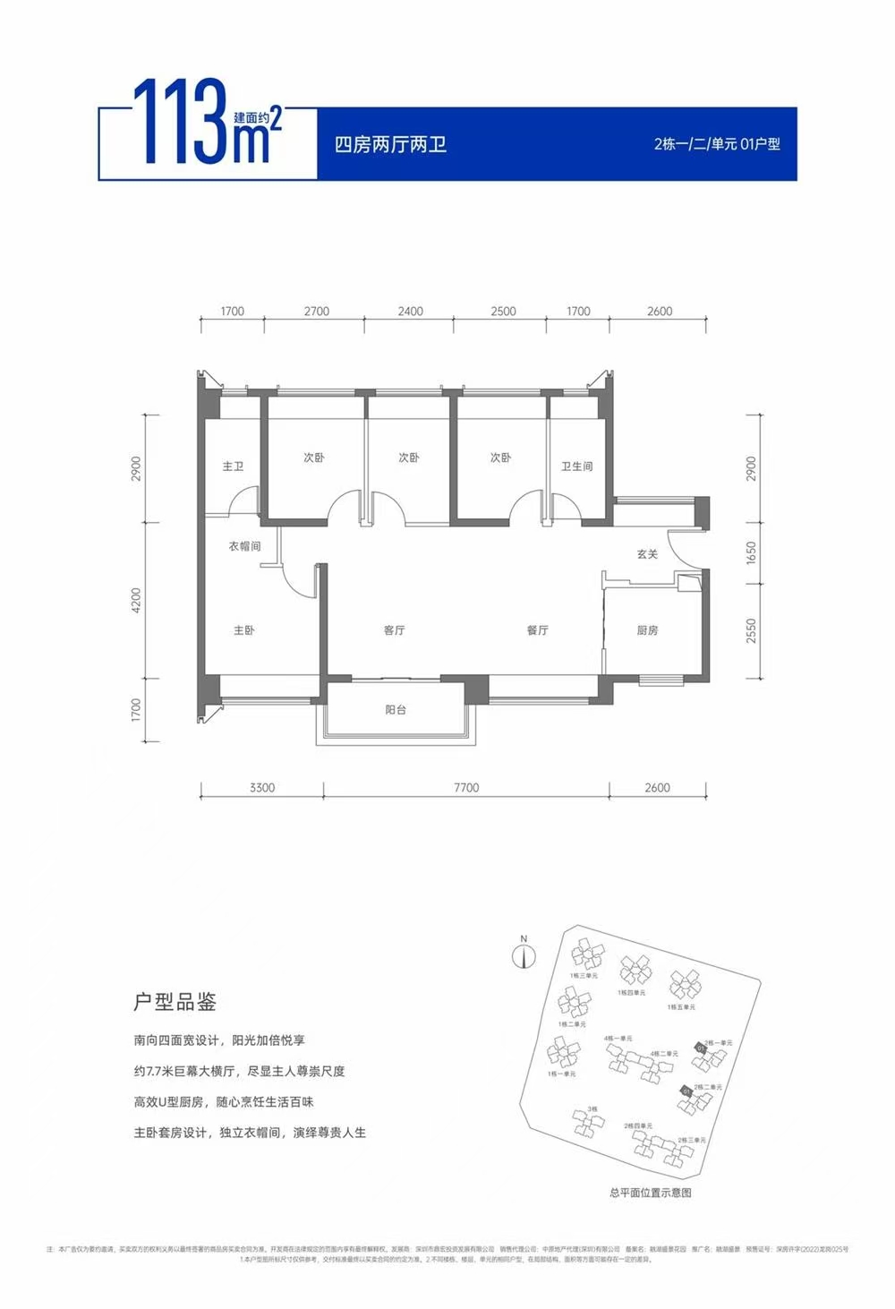
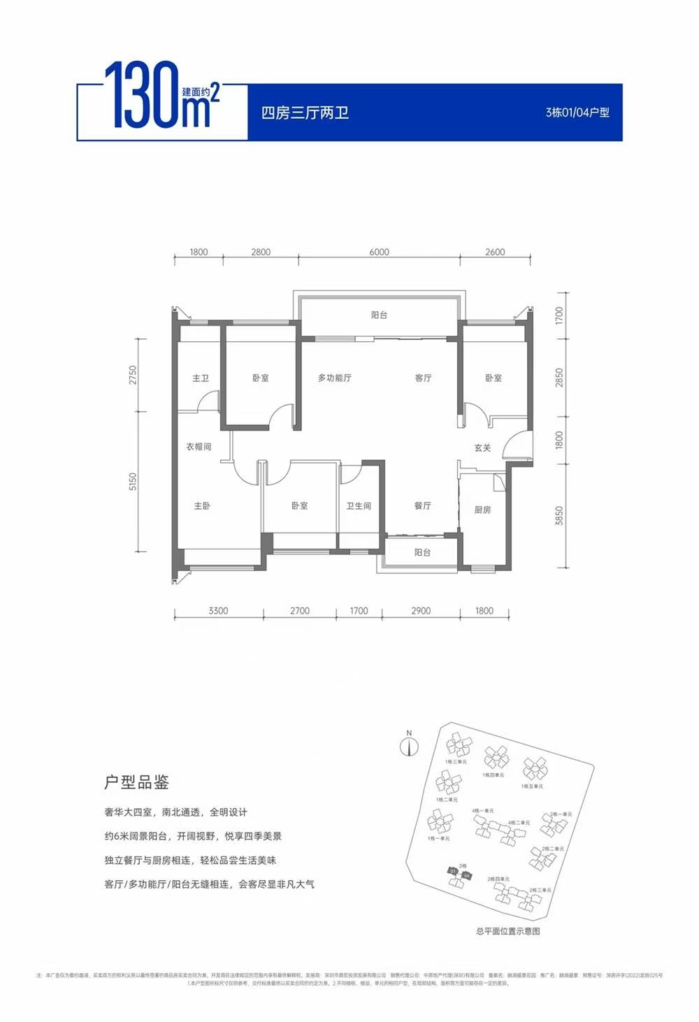
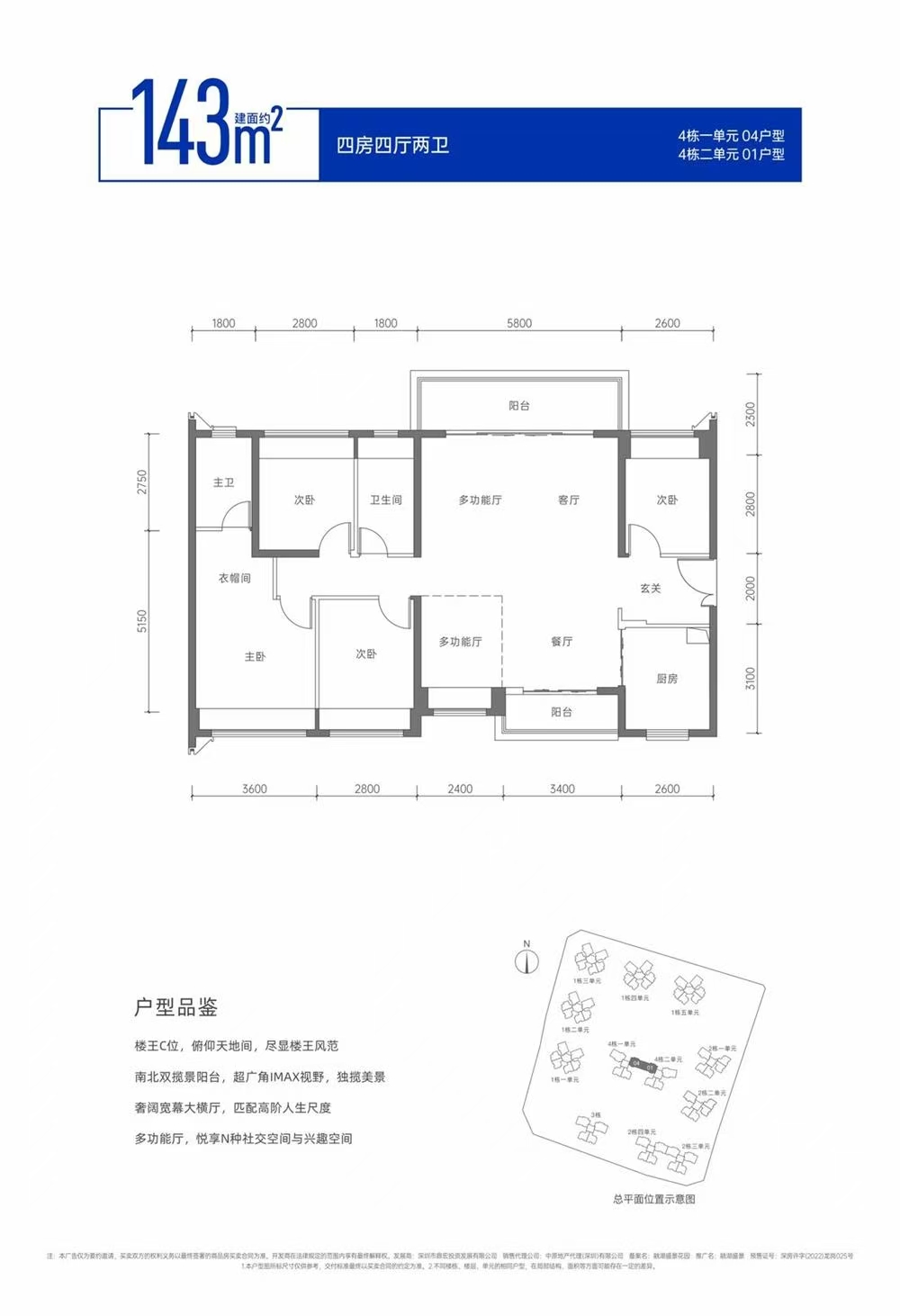
【品質人居】約82-111m3-4房,約81%實用率,戶戶朝南,通風采光俱佳















服務熱線:何詠斌 聯系方式:13267179661


