拾悅城楠園8大必買理由1?【網紅地段】前海擴容高地 沙井正中心2?【舊改煥新】超490萬㎡航母級城市更新 城市蝶變升級3?【商業薈萃】3公
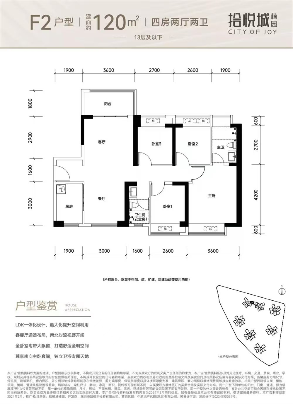
房屋戶型:3室 、4室 、5室 、
住宅類型:精裝修
區域:深圳市寶安區寶安大道11號線沙井站B口
最新開盤:2023-10-21
立即咨詢
24小時咨詢熱線:13267179661
拾悅城楠園8大必買理由
1?【網紅地段】前海擴容高地 沙井正中心
2?【舊改煥新】超490萬㎡航母級城市更新 城市蝶變升級
3?【商業薈萃】3公里內超48萬㎡商薈集群
4?【11號線旁】緊鄰11號線沙井站 暢達全城
5?【多期開發】大城典范 兌現美好生活 進階理想人居
6?【無憂教育】家門口12年目送式無憂教育
7?【水岸醇居】下樓直達約9.5萬㎡占地定崗湖公園
8?【全能戶型】建面約86-140㎡3-5房進階全能戶型
















